|
padá pak na L staveni skoro 7 obyvatelů, jinde 5, nanejvýš 6. V městech ovšem více. Poněvadž pak je bílou vranou valašská chalupa o 2 obytných místnostech, připadá tento průměrný počet na jednu místnost.
Je tu tudíž silné přeplnění a odtud následky v ohledu zdravotním a mravním.
Valašská chalupa je technicky jednoduchá a cena její pohybuje se od 100 zl.—300 zl. (někdy i méně). Nemohu sdíleli náhledy něklerých národopisných snílků, kteří tu vidí zvláštnosti slohové a umělecký vkus lidový. Kromě několika případů došli slabých neviděl jsem tu žádné snahy po zdokonalení, praktickém a racionel-ním upravení obydlí Valachova, a dokonce ne zvláštních umělňslek slohových a ornamentálních. Valach pohlíží na své obydli jako na nutné zlo, které potřebuje, aby měl kde hlavu položil, a které vyžaduje dosti oprav a nákladů. Přes všeliký dostatek a láci dřeva, přes to, že každý skoro majitel se vyzná v pracích tesařských, přes to, že osvědčují. svůj vkus na různých menších předmětech dřevěných, přes to vše je valašská chalupa ponejvíce »roztrhaná chalupa, slunce clo ní svítí*, jednoduchá, bez ozdob, bez zvláštnůstek.

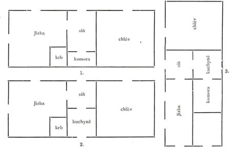
Nej obyčejnější její místnosti jsou: jizba, síň, vzadu chlév a dole sklep. (Často však bývá sklep vykután ve stráni mimo chalupu.) Jsou případy, kde se vyskytují zvláštní kuchyně a vedle ní špižírna, komora. Zřídka kdy, jak praveno, 2 místnosti obytné. V těch případech pak zadní místnost nazývá se světnici a přední jizbou.
Výška od podlahy ku stropu od 18 m. až nejvíce 3 m. Hostince mají přes 3 metry, školy skoro 4 m. (38 m.). Jak praveno,
|